
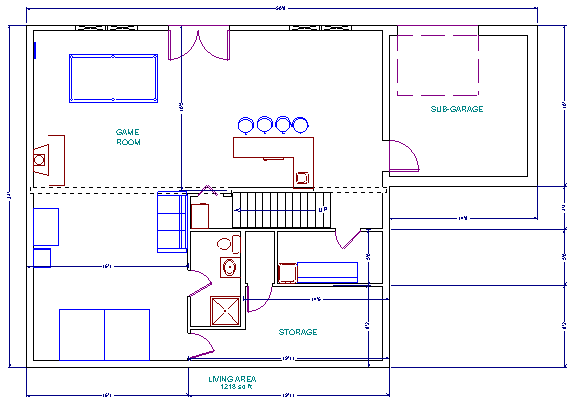
We may not finish the basement right away, but these are our plans for it. We intend to make it into our game room. I also want to put in a darkroom so that I can start again with my black and white photography.
And yes, we are putting in a sub garage. With a walk-out why not! We're going to put all our lawn equipment and stuff like that in it.