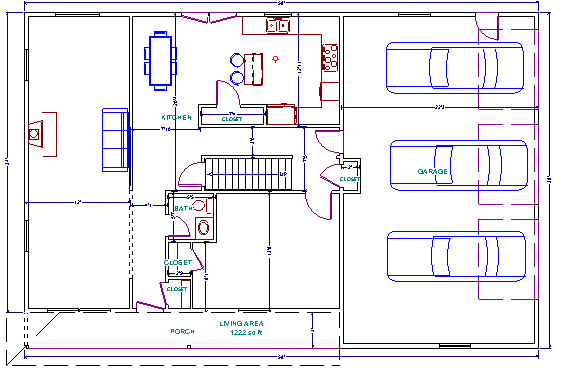
First Floor Plan

 
    We figured all we needed on the first floor was a main open room for entertaining (no TV), with a fireplace of course.  A dining room, kitchen, office, 1/2 bath and of course 3 car garage.

    And a covered front porch finishes it off for now.  We will build a small deck to go downstairs off the kitchen, not sure when though.

 Walkout Basement
 Second Floor