
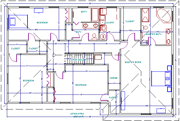
And yes, we know the master bedroom is VERY large, but hey, why waste the space over the garage. The laundry room and water heater are upstairs for all the obvious reasons - its where most of the hot water is needed and dirty clothes are! Pluse we have two furnance to better regulate heating.